Skip to content
TIPSKI STANOVI I GARAŽNA MESTA
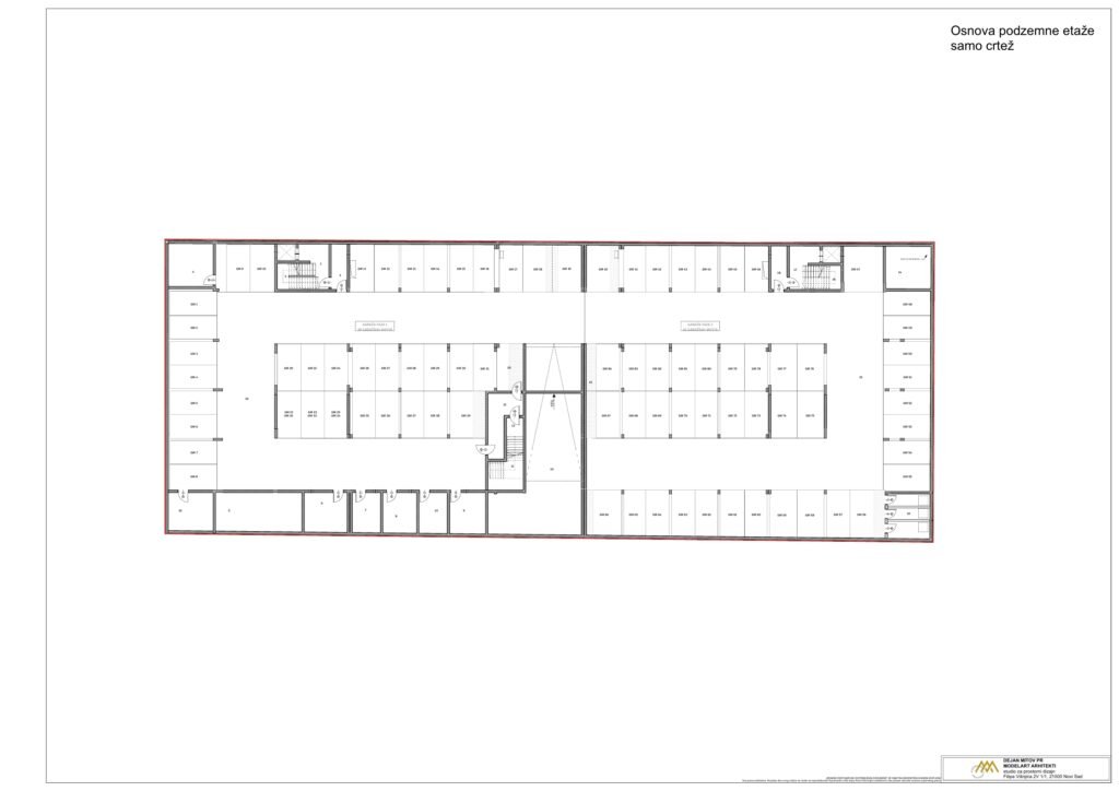
GARAŽNA MESTA
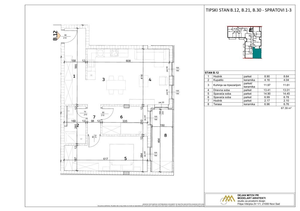
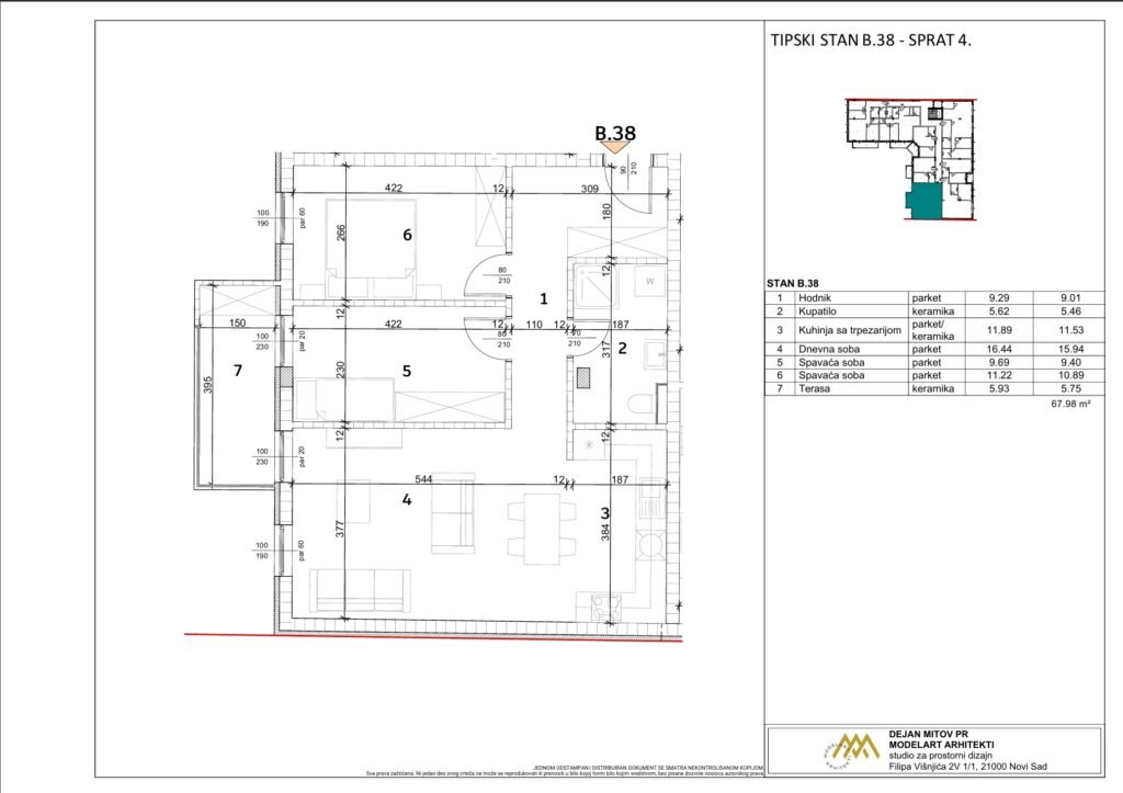
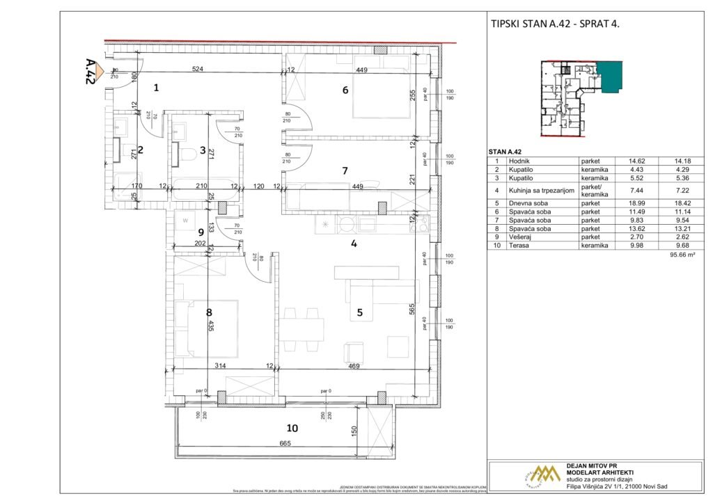
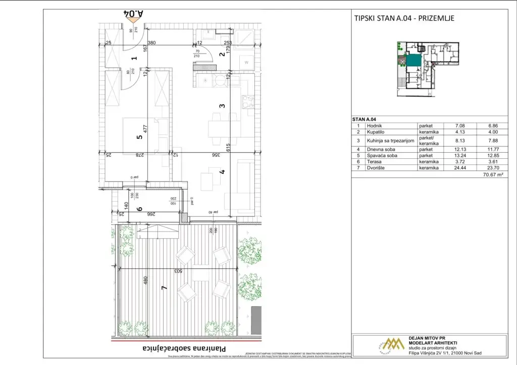
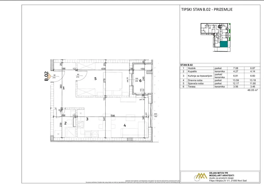
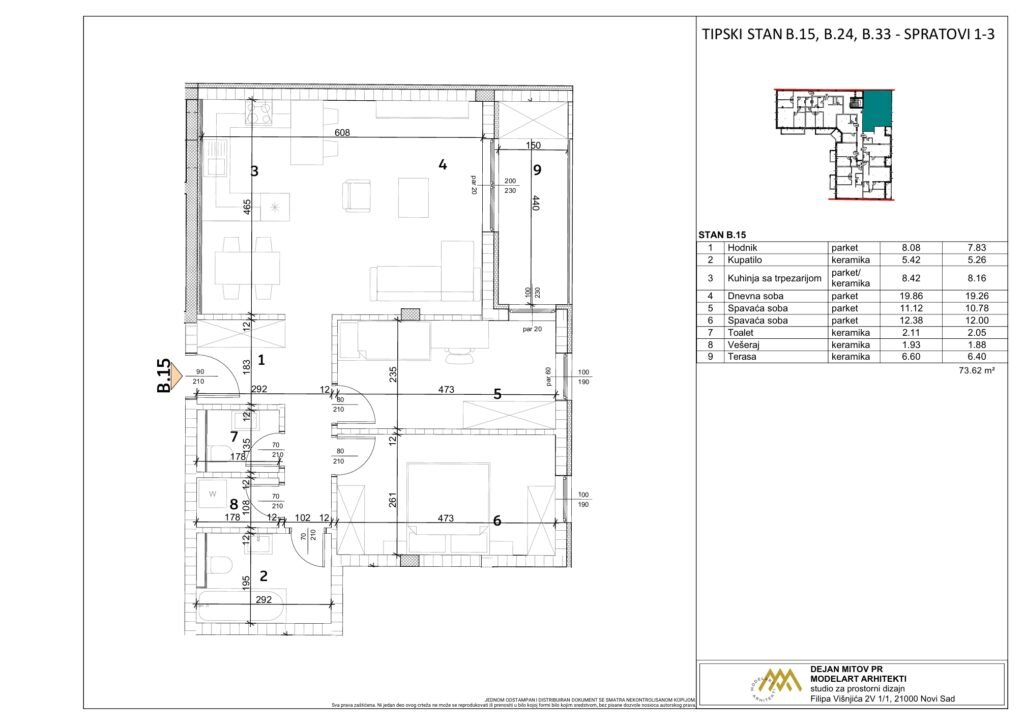
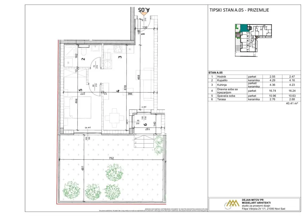
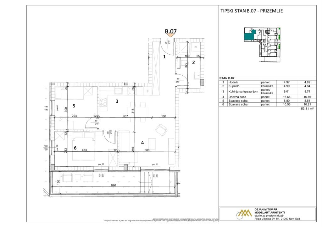
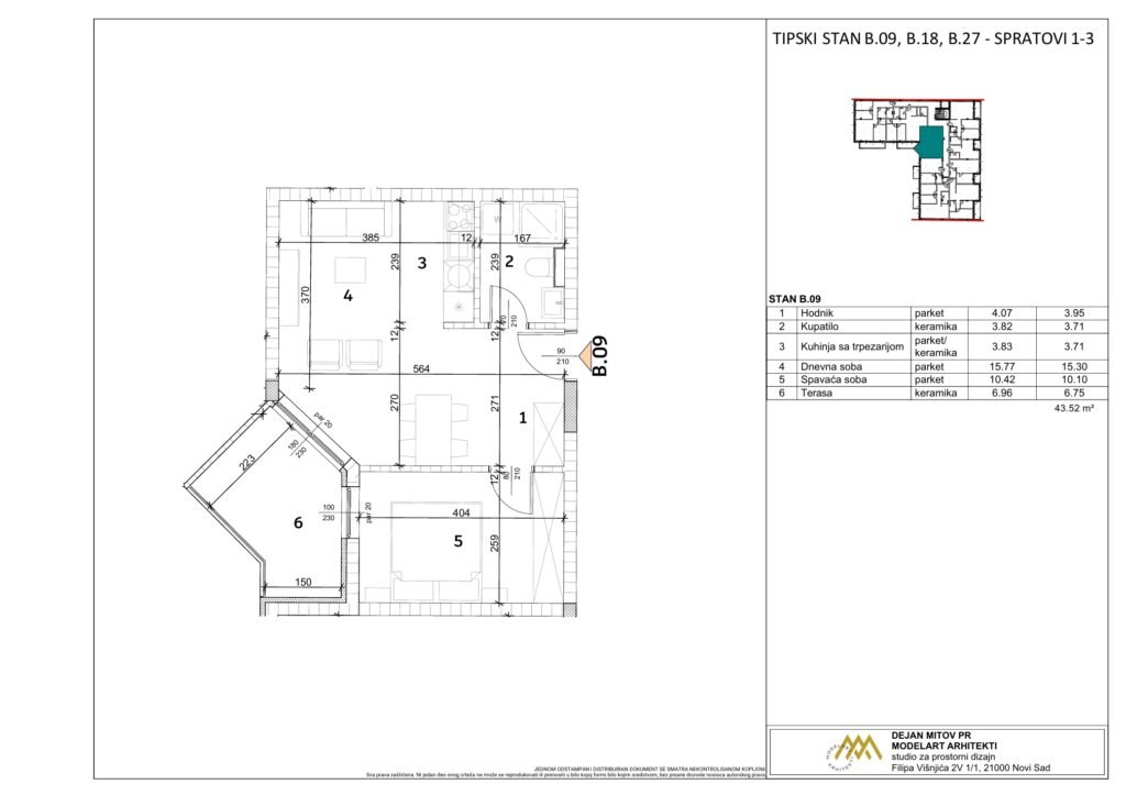
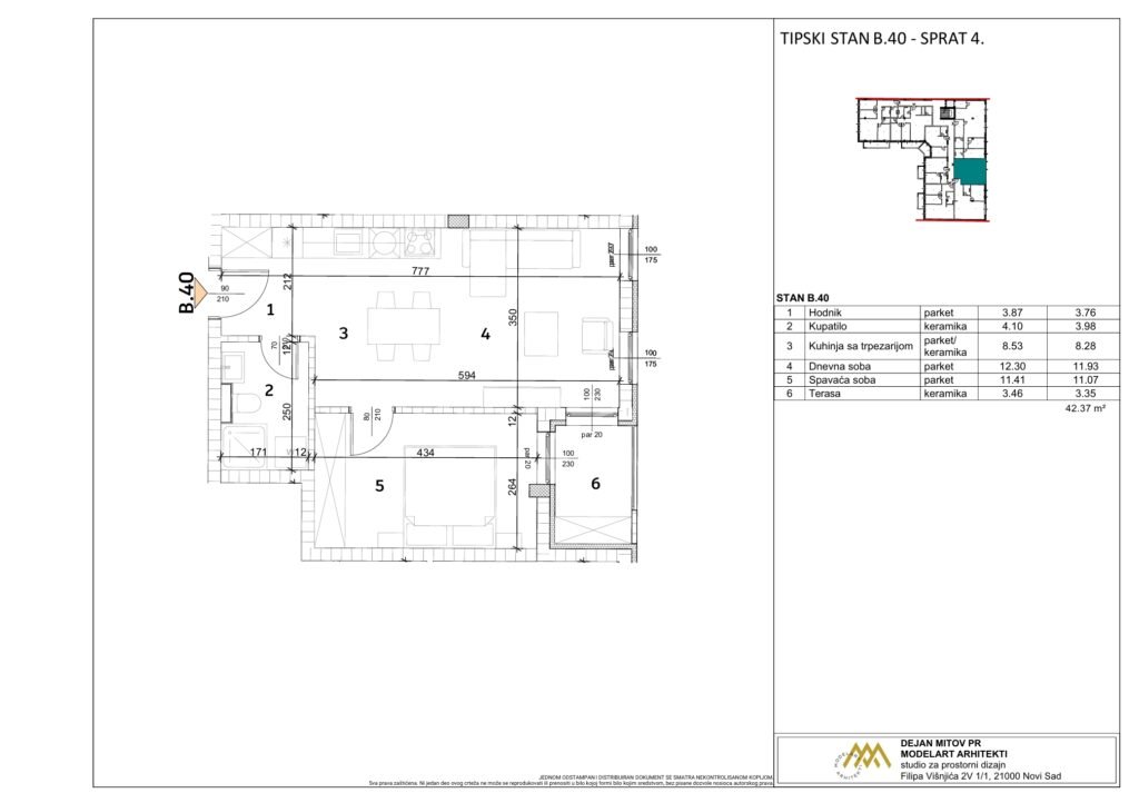
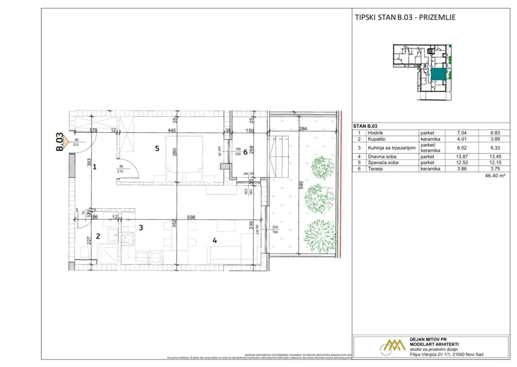
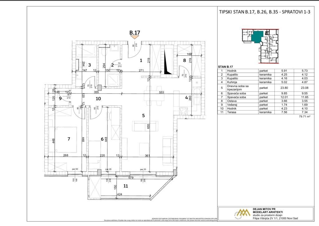
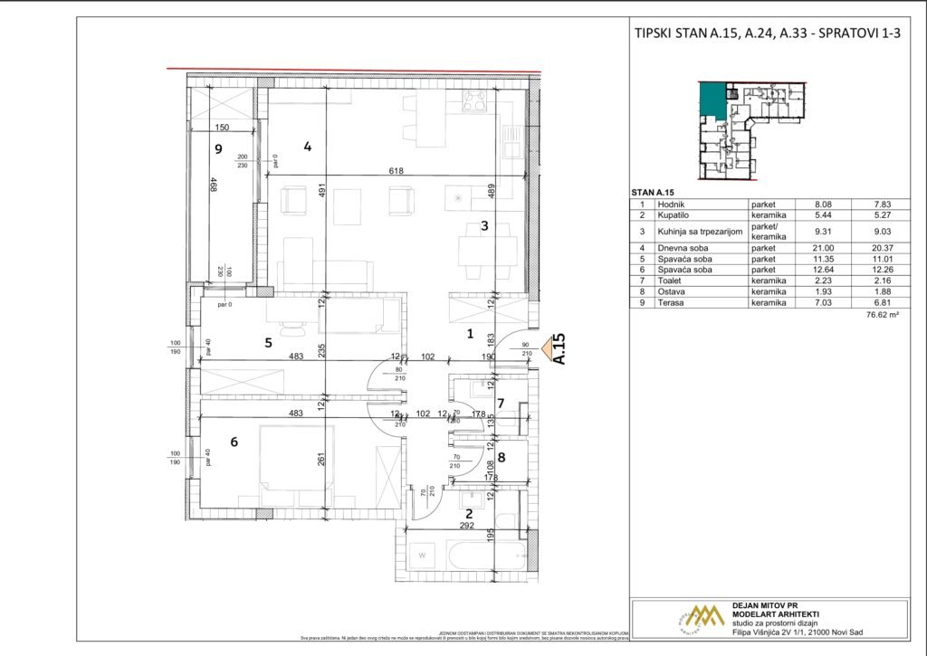
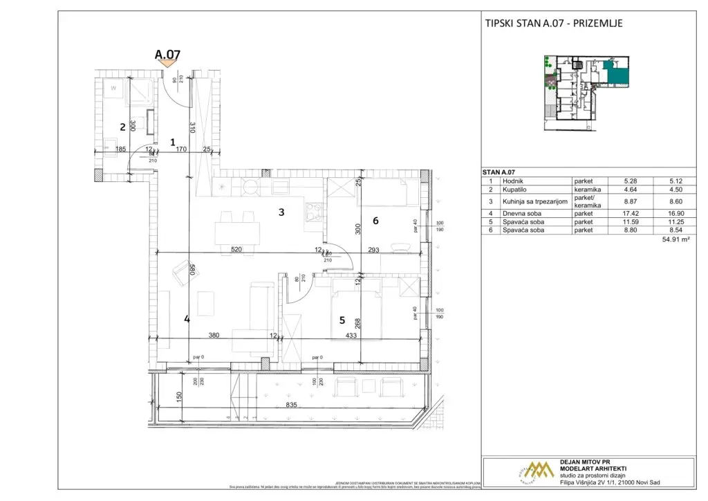
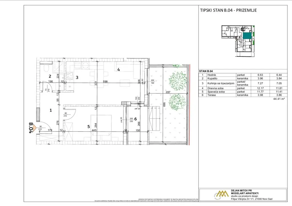
TIPSKI STANOVI